Lesson 2: Creating the Phytosanitary Certificate Using the Certification Process
Topic 1: Step 1: Review the Application for Certification
To begin the process of phytosanitary certification, the NPPO must first receive an application (formal request) from the exporter for certification.
Objectives:
- Participants will recognize the need for export application forms.
- Participants will know what basic information to ask exporters for on application forms after seeing a few examples.
The first step in the export certification process is to review the application submitted by the exporter. Does the application have all the required information? Is the commodity a plant, plant product, or other regulated article that could be covered under a phytosanitary certificate? It is important for exporters to provide all the information requested by their country’s NPPO so the certifying official can make informed decisions about what actions need to take place and ensure timely certification. Remember, the purpose of a phytosanitary certificate is to help the exporter meet the phytosanitary requirements of the importing country to which their goods are being shipped.
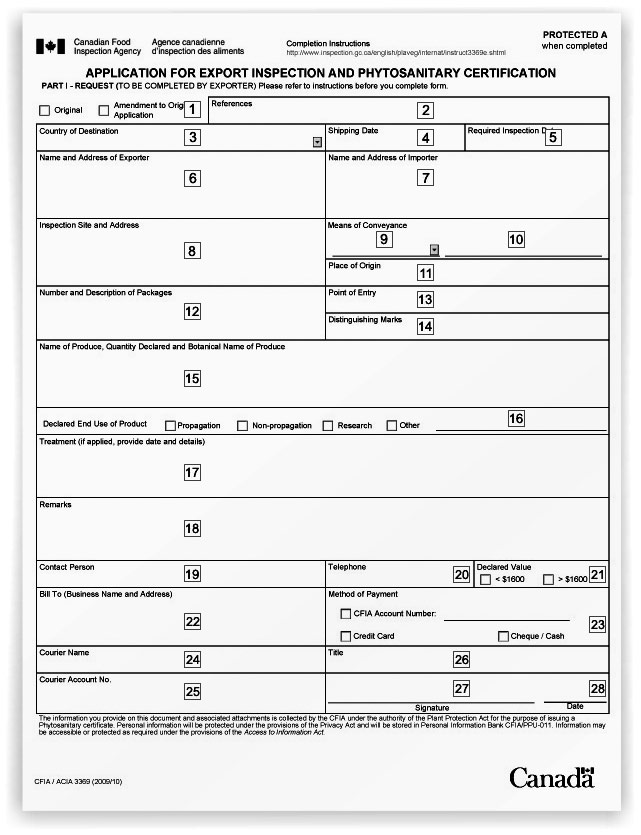
Here is an example of an actual application form for phytosanitary certification of an export. The numbers in the boxes refer to a list of instructions found on Canada’s NPPO site. http://www.inspection.gc.ca/about-the-cfia/forms-and-publications/forms-catalogue/application/eng/1359393669739/1359393814001

We will now illustrate what this application process could look like in practice by using a fictitious example throughout the rest of this lesson.

Imagine there is a farmer in Exportland operating multiple barumba berry farms. The farmer would like to export a portion of her crop to Importland. Her name is Paloma Perez, and she has applied to Exportland’s NPPO for certification of her Happy Valley Farms berries that will be exported to Importland.

As you recall, the first step in phytosanitary certification is to review applications. Exportland requires the following information to be included in every application for certification.
- Name and address of the exporter
- Name and address of the importer
- Name and address of the applicant
- Place of inspection
- Date of departure
- Place of departure
- Description of articles to be certified
- Means of conveyance
- Point of entry
- Signature
- Date
Look at this application for berry export from Paloma Perez. It contains all of the above listed information required by Exportland. In the upper right-hand corner, notice that Exportland’s application also includes space to note any attachments. Although not shown here, you can see in the corner that Paloma Perez has attached an import permit, as well as a fumigation certificate to her application.
In this version of the application, there is also a box at the bottom for the plant protection officer handling the export paperwork. This space is used by the NPPO to help keep the process organized and improve traceability.

An export application does not need to look exactly like the above example from Ms. Perez. However, it is a good example of the information that you should ask producers to provide. This form happens to be the USDA version (PPQ Form 572), which can be found here along with other phytosanitary forms for your reference.
https://www.aphis.usda.gov/wps/portal/aphis/ourfocus/planthealth/sa_export/sa_forms
However an NPPO chooses to format the application for export, it should be sure to request enough information from the exporter to make informed decisions about the next steps toward issuing a Phytosanitary Certificate.
The exporter who wishes to trade goods internationally must initiate the Phytosanitary certification process. This is done by submitting an application for export. The NPPO will then review it before continuing with the process of certification. Therefore, it is important that the application form contains enough information for the NPPO to decide whether or not to continue the process.
To continue, select Topic 2 from the Topics menu above or click here.
